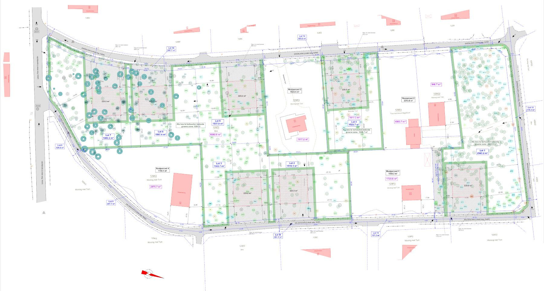
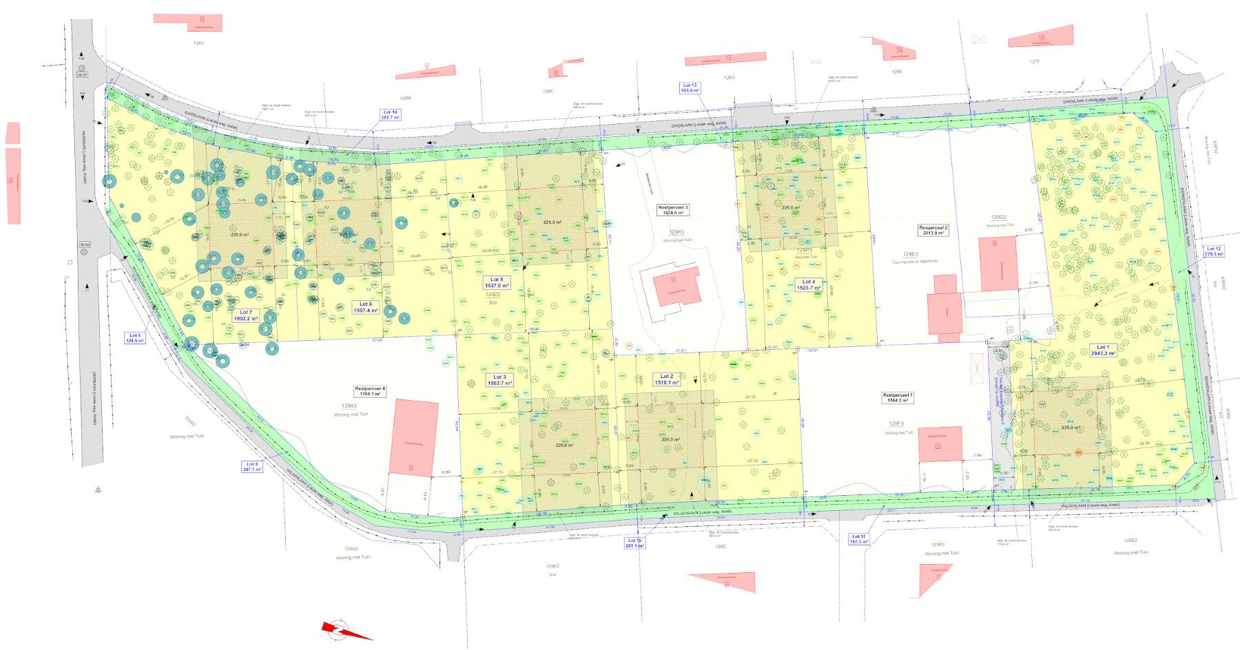
Verkaveling Rotselaar

Alle projecten

We hebben onze klant van A tot Z bijgestaan voor het opmaken en verkrijgen van een verkavelingsvergunning voor 7 loten in bosrijk gebied.

Jouw project starten?

Landmeters Cuyt

Haachtse straatje 16,
3150 Haacht
 
Boudewijnlaan 31,
2220 Heist-op-den-Berg

Contactgegevens